11 января 2024 /
0 комментариев
/
17 просмотров
Установка турника 3 в 1 на шведскую стенку может быть отличным дополнением к вашему домашнему спортивному уголку. В этой статье мы предоставим вам подробные инструкции по установке турника своими руками, а также много фотографий, чтобы облегчить процесс.

1

2

3

4

5

6

7

8

9

10
Шведская стенка Муромец Лайт

11
Брусья №2 (крепеж к стене)

12

13

14
Шведская стенка с турником и брусьями

15

16

17
Foreman FY-279 брусья / пресс навесные
18

19
Шведская стенка с турником

20
Диаметр перекладины для турника стандарт

21
Шведская стенка turnik Home

22

23
.jpg)
24
Шведская стенка с турником 3 в 1

25

26

27

28
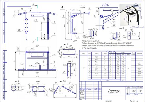
Шведская стенка с турником чертеж
.jpg)
29
Шведская стенка с турником 3 в 1
30

31

32

33

34

35

36
Шведская стенка с турником 3 в 1

37

38

39

40
Шведская стенка с турником 3 в 1

41

42
43

44

45

46
Шведская стенка maximum (универсальный)

47

48

49

50

51
Шведская стенка maximum (универсальный)

52
Пресс-брусья с турником ar031.1

53
54
Шведская стенка Air-Gym ysk19

55

56
Шведская стенка maximum (универсальный)

57

58
Чертёж турника настенного простой

59

60

61
DFC Athletic sj600

62

63
Шведская стенка Muroms-xm16

64
Чертёж турника 3 в 1 настенный

65

66
67

68

69

70

71
Ширина турника для подтягивания стандарт

72

73

74

75

76

77

78

79
Шведская стенка turnik Home m-1
80

81
82

83
Шведская стенка turnik Home m-1

84

85

86

87
Шведская стенка металлическая 240x71x16 см

88

89

90

91
Шведская стенка металлическая 240x71x16 см

92

93

94

95

96

97

98

99
Брусья + пресс навесные для шведской стенки Атлант м-220

100
Шведская стенка металлическая 240x71x16 см

101

102
Чертеж шведской стенки из металла с турником и брусьями
103

104

105

106

107

108

109
Ширина брусьев для отжиманий стандарт чертеж

110

111

112
Шаг 1: Подготовка к установке
Перед тем как начать установку, убедитесь, что у вас есть все необходимые материалы и инструменты. Наши фотографии помогут вам увидеть, что именно вам понадобится.