Брючница - это удобный и функциональный элемент для хранения брюк и брюк. Она может быть установлена в шкафу, чтобы оптимизировать пространство и сделать хранение одежды более удобным и организованным. Одним из важных аспектов выбора брючницы является ее высота, которая должна соответствовать размерам вашего шкафа и вашим потребностям.





















































Выбор брючницы подходящей высоты
При выборе брючницы для вашего шкафа важно учесть высоту шкафа и количество брюк, которые вы планируете хранить. Высота брючницы должна быть такой, чтобы брюки не складывались в несколько слоев, что может привести к их мятости и потере формы. В то же время, брючница не должна быть слишком высокой, чтобы обеспечить удобный доступ к одежде.
Если у вас есть высокие шкафы, то вам потребуется брючница достаточной высоты, чтобы вместить все ваши брюки без складывания их в два слоя. Для низких шкафов можно выбрать брючницу менее высокую, чтобы сохранить удобный доступ к одежде.






















































Идеи и вдохновение
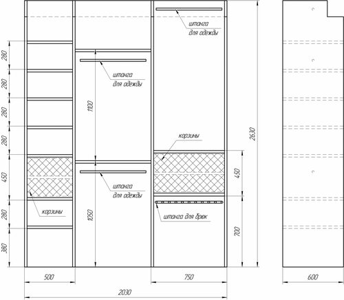
Мы собрали для вас множество фотографий с различными вариантами установки брючницы в шкафу. Вы сможете увидеть различные высоты брючниц, способы их установки и организации пространства в шкафу. Вдохновитесь и найдите идеальное решение для своего шкафа!