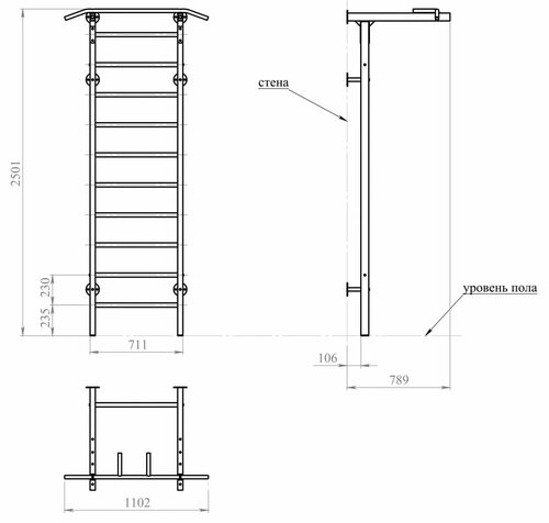
Шведская стенка - это отличный способ обустройства домашнего спортивного уголка. Одним из важных элементов шведской стенки является лестница, которая позволяет удобно подниматься и спускаться. В этой статье мы подробно рассмотрим, как сделать лестницу для шведской стенки своими руками.






























.jpg)



















Шаг 1: Подготовка материалов
Перед началом работы необходимо подготовить все необходимые материалы и инструменты. Вам понадобятся деревянные бруски, саморезы, отвертка, пила, шлифовальная машина и другие инструменты для работы с деревом.
















































Шаг 2: Изготовление лестницы
Начните с изготовления ступеней лестницы из деревянных брусков. Отмерьте и вырежьте необходимое количество ступеней с учетом размеров вашей шведской стенки.
Продолжайте работу, следуя подробным инструкциям и фотографиям по ссылке [ссылка на инструкцию].