6 января 2024 /
0 комментариев
/
18 просмотров
Планировка детской комнаты играет важную роль в создании уютного и функционального пространства для ребенка. В этой статье мы представим различные варианты планировки детских комнат с чертежами и фотографиями, чтобы помочь вам воплотить в жизнь идеальное пространство для вашего малыша.

1

2
Детская комната план

3

4
Детская комната план

5

6

7

8

9

10
Расположение мебели в детской план

11

12

13

14

15

16

17

18

19

20

21

22

23

24

25

26

27

28

29

30

31

32

33

34

35

36

37

38

39

40

41

42

43

44

45

46

47

48

49

50

51

52

53

54

55
План расстановки мебели с размерами спальня

56

57
План спальни

58

59

60
План расстановки мебели

61

62

63
Спальня 9м2 квадратная расстановка

64

65

66

67

68

69

70

71
Детская комната 10 кв м план

72

73

74

75

76

77

78

79

80

81

82

83

84

85

86

87

88

89

90

91

92
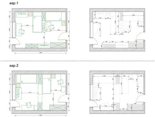
План расстановки мебели в детской для двоих

93

94

95

96

97

98

99

100

101

102

103

104

105

106

107

108
Планировка детской комнаты для разных возрастов
В зависимости от возраста ребенка, планировка детской комнаты может значительно отличаться. Мы рассмотрим варианты планировки для младенцев, дошкольников и подростков, учитывая их потребности и интересы.