7 января 2024 /
0 комментариев
/
18 просмотров
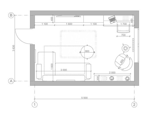
Планировка комнаты с учетом размеров и расстановки мебели играет важную роль в создании уютной и функциональной обстановки. Мы собрали для вас множество чертежей комнат с различными вариантами расположения мебели, чтобы помочь вам воплотить в жизнь свои дизайнерские задумки.

1

2

3

4

5

6

7

8

9

10
11
Спальня расстановка мебели черте

12

13
Развертки квартиры чертежи

14

15

16

17

18
План схема расстановки мебели

19

20
Схема помещения с ПЭВМ 5x3

21

22
План расстановки мебели в детской комнате

23

24
План квартиры

25

26
План спальни

27
План расстановки мебели в детской комнате

28
Гостиная расстановка мебели схема

29

30
План квартиры

31
План спальни

32

33

34

35

36

37

38
План расстановки мебели в кабинете

39
План расстановки мебели в гостиной

40

41
Расположение мебели в детской план

42

43

44
План гостиной

45

46
План расстановки мебели на кухне

47
Чертёж квартиры вид сверху

48
Планировка п44т 2-х комнатная квартира

49
Планировка квартиры эскиз

50

51

52
Кухня гостиная схема расстановки мебели

53
План расстановки мебели Автокад

54
План квартиры

55
Однокомнатная квартира план сверху

56
План планировочное решение

57
Планировкагостинной план

58
Планировка спальни с гардеробной и санузлом

59
Схема замера помещения для кухни

60
Планировки однокомнатных квартир 40 кв

61
План расстановки мебели

62
Детская комната план

63
Пан расстановки мебели

64

65
План расстановки мебели Автокад

66
Спальня 9м2 квадратная расстановка мебели

67

68

69

70

71

72
Планировочное решение квартиры

73

74
Планировка спальни 14 кв.м прямоугольная схема

75

76

77

78
План расстановки мебели в гостиной

79

80
Схема расположения мебели в доме

81

82
План расстановки мебели

83

84
Перепланировка двухкомнатной хрущевки 42 кв.м

85

86

87
План расстановки мебели

88
План развертки стен

89
План расстановки мебели в спальне

90

91

92
II-18/9 перепланировка двухкомнатной квартиры

93
Обмерочный план спальни

94

95

96
Развертки стен Автокад

97

98
Обмерный план Тульская

99
План расстановки мебели на кухне

100

101

102

103

104
Дизайн проект план расстановки мебели

105

106
Гостиная план

107

108

109
Расстановка мебели в кухне-гостиной план

110

111
Идеи планировки комнаты с мебелью
В нашей подборке вы найдете чертежи различных типов комнат – спальни, гостиной, кухни и детской – с размерами и расстановкой мебели. Это поможет вам лучше представить, как оптимально использовать пространство и создать функциональные зоны в интерьере.