Высота полки над инсталляцией имеет большое значение при планировании и организации пространства. Правильно выбранная высота полки может значительно улучшить функциональность и эстетику помещения.
























































Как определить оптимальную высоту полки
Для определения оптимальной высоты полки над инсталляцией нужно учитывать несколько факторов. Важно учесть функциональность полки, высоту потолка, а также предполагаемое использование пространства.
Рекомендуется провести измерения и сделать несколько пробных расстановок, чтобы найти оптимальное положение полки. Учтите также возможность дальнейшей модификации и изменения конструкции, чтобы адаптировать полку под ваши потребности.























































Примеры высоты полки над инсталляцией
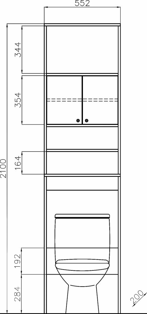
Ниже приведены примеры различных вариантов расположения полок над инсталляцией с подробными пошаговыми инструкциями и фотографиями.
Помните, что правильно выбранная высота полки над инсталляцией может существенно улучшить функциональность и внешний вид помещения. Будьте внимательны при планировании и экспериментируйте, чтобы найти оптимальное решение.
Выбирая высоту полки над инсталляцией, учитывайте свои потребности и особенности помещения. Надеемся, что наша статья поможет вам принять осознанное решение и создать удобное и функциональное пространство.