Создание акустической полки для ВАЗ 2114 своими руками может быть увлекательным и творческим процессом. В этой статье мы подробно рассмотрим необходимые размеры и чертежи для изготовления полки с боковинами, а также предоставим множество фотографий, чтобы вы смогли легко следовать инструкциям.































Необходимые материалы и инструменты
Перед тем как приступить к изготовлению акустической полки, вам понадобятся следующие материалы и инструменты: фанера определенной толщины, пила, шурупы, клей, рулетка, ручка, линейка и т.д. Подготовьте все необходимое и приступайте к работе.
































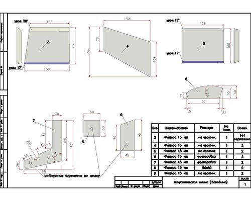
Чертежи и размеры
Прежде всего, начните с создания чертежей для вашей акустической полки. Убедитесь, что у вас есть точные размеры, чтобы изготовленная полка точно подошла к вашему автомобилю. Нарисуйте чертежи на фанере, обозначив все необходимые отверстия и вырезы.
Помните, что правильные размеры и аккуратная работа сделают вашу акустическую полку не только функциональной, но и эстетически привлекательной.






























Изготовление полки
Когда у вас есть все необходимые чертежи и размеры, приступайте к изготовлению полки. Пользуйтесь фотографиями из данной статьи, чтобы убедиться, что вы выполняете все шаги правильно. Не забывайте про аккуратность и безопасность при работе с инструментами.
После завершения работ по изготовлению акустической полки, установите ее в ваш автомобиль и наслаждайтесь качественным звуком.