2 января 2024 /
0 комментариев
/
20 просмотров
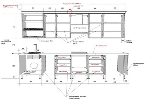
Правильное распределение полок в кухонном шкафу имеет большое значение для удобства хранения предметов и оптимального использования доступного пространства. В этой статье мы рассмотрим, как правильно определить расстояние между полками в шкафу на кухне, чтобы сделать вашу кухню более функциональной и удобной.

1
Высота кухонной столешницы стандарт

2
Высота кухни эргономика

3
Кухня "София" (1,8 м) 3d (белый/бирюза)

4
Высота кухонной столешницы стандарт для кухни

5
Высота установки навесных кухонных шкафов

6

7
Стандартная высота верхних кухонных шкафов Селена 205

8
Высота кухни от пола со столешницей стандартная высота

9
Высота кухонной столешницы стандарт для кухни

10
Кухня "Татьяна" ЛДСП 2,0м (Комби БД)

11
Высота кухонной столешницы стандарт

12
Ширина кухонных шкафчиков стандарт

13
Высота кухонных шкафов с антресолью

14
Высота кухонного гарнитура от пола до столешницы стандарт для кухни

15
Высота столешницы кухонного гарнитура стандарт для кухни от пола

16
Эргономика кухонной мебели

17
Стандартная высота верхних кухонных шкафов Селена 205

18
Эргономика кухни высота вытяжки

19
Кухонная столешница Размеры стандарт

20

21

22
Стандартная высота верхних кухонных шкафов Селена 205

23
Эргономика кухни высота шкафов

24
Высота нижних шкафов кухни икеа

25
Высота кухни икеа со столешницей

26
Стандартная высота верхних кухонных шкафов Селена 205

27
Двухуровневая кухня чертеж

28
Высота кухонной столешницы стандарт

29
Ширина верхних кухонных шкафов стандарт

30
Типоразмеры кухни икеа

31
Кухня Велес модули

32
Высота верхних шкафов кухни стандарт от столешницы

33
Стандартная высота верхних кухонных шкафов Селена 205

34
Кухня угловая 900x2100 левая,

35
Высота кухонной столешницы стандарт

36
Кухня Розалия 1.7

37
Размеры кухонных секций

38
Стандартная высота верхних кухонных шкафов Селена 205

39
Стандартная высота верхних кухонных шкафов Селена 205

40
Размещение кухонных шкафов по высоте

41
Глубина верхних шкафов кухни стандарт

42
Чертежи раскроя кухонной мебели

43
Высота кухни от пола со столешницей стандартная высота

44
Высота крепления закладной для кухонных шкафов

45
Стандартная высота верхних кухонных шкафов Селена 205

46
Кухонная столешница Размеры стандарт

47
Глубина кухонного модуля

48
Кухонный гарнитур 3м прямой с холодильником чертеж

49
Ширина кухонной столешницы стандарт

50
Высота столешницы кухонного гарнитура

51
Чертеж кухни

52
Кухня Гранд ДСВ модули

53

54
Эргономика кухни Верхние шкафы

55
Кухня Паола хофф

56

57
Высота кухонной столешницы стандарт для кухни 80

58
Фьюжн-al-03

59

60
Высота кухни эргономика

61
62
Высота розеток для встроенной духовки и микроволновки

63
Модули кухонные ikea габариты
64

65

66
Высота кухонной столешницы стандарт для кухни от пола

67
Модульная кухня «Бьюти» оранж/Грэй

68
Схема распила кухонных шкафов

69

70
Кухня Люкс лоза 2.0 БТС

71
Кухонный гарнитур София 1.8 3d

72
Верхний кухонный модуль глубина 400мм

73
Чертеж угловой гардеробной с размерами

74
Кухонный гарнитур Сабрина Экстра 1700

75
Кухня модульная Halmar Margaret 3

76
Размер кухни Оптима Лайт

77
Кухонный модуль шв 600.800 сборка

78
Угловой кухонный гарнитур 2000х1400 схема

79
Размеры кухонных модулей стандарт

80
Ширина кухонных шкафчиков стандарт

81
Стандартная высота верхних кухонных шкафов Селена 205

82

83
Глубина кухонных шкафов нижних

84
Встраиваемая пароварка Smeg sc45vne2

85

86
Модульная кухня Констанция графит

87
Модульная кухня Констанция графит

88
Стандартная высота нижних кухонных шкафов без столешницы

89
Кухонный гарнитур Сан-Ремо

90
Высота кухонной столешницы стандарт для кухни 80

91
Эргономика кухни высота столешницы

92

93
Высота столешницы кухонного гарнитура стандарт для кухни от пола

94
Глубина кухонной столешницы стандарт ширина

95
Кухня Престиж 1600

96
Сушка Lora su06/600

97
Кухонный гарнитур Hoff Сити

98
Икеа план чертежи

99
Двухуровневый кухонный гарнитур чертеж

100
Высота фасадов кухни стандарт

101
Стандартная высота верхних кухонных шкафов Селена 205

102
Стандарт розеток снизу

103
Кухонный верхний модуль высотой 900мм

104
Кухонная мебель вид сбоку чертеж

105
Эргономика кухни высота столешницы
.jpg)
106
Пенал кухонный Размеры
Примеры расстановки полок
Мы подготовили для вас несколько примеров расстановки полок в кухонных шкафах с различными размерами и назначением. На фотографиях вы сможете увидеть, как можно оптимально использовать пространство и создать удобную и функциональную систему хранения.