Подъемные механизмы для кроватей становятся все более популярными, позволяя максимально эффективно использовать пространство в спальне. Установка такого механизма может показаться сложной, но с нашей подробной схемой и чертежами вы сможете справиться с этой задачей легко и быстро.
































Шаг 1: Подготовка к установке
Перед началом установки подъемного механизма необходимо провести подготовительные работы. Убедитесь, что у вас есть все необходимые инструменты и материалы, а также ознакомьтесь с инструкцией производителя.



.jpg)


















.jpg)













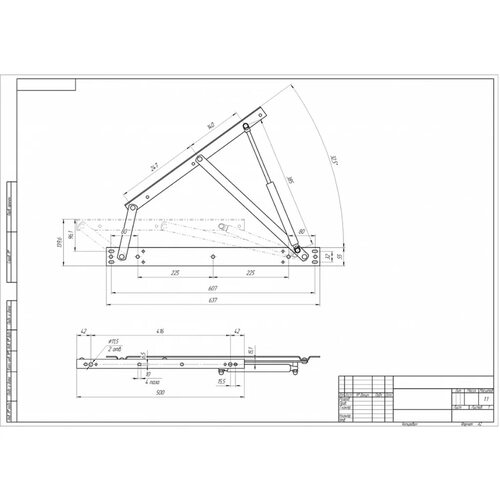
Шаг 2: Монтаж механизма
Следуя подробной схеме установки, начните монтировать подъемный механизм на кровати. Убедитесь, что каждая деталь устанавливается правильно и крепится надежно.













.png)






















Шаг 3: Завершающие работы
После установки механизма проверьте его работоспособность. Убедитесь, что кровать поднимается и опускается плавно, без заеданий или люфтов. При необходимости внесите коррективы в установку.
Теперь, когда у вас есть подробная схема установки и чертежи, установка подъемного механизма для кровати не представляет сложностей. Следуйте нашим инструкциям и наслаждайтесь удобством и практичностью вашей обновленной спальни!