Создание двухъярусной кровати своими руками может быть увлекательным и творческим процессом. Независимо от того, строите ли вы кровать для детской комнаты или гостевой спальни, вам понадобятся хорошие чертежи и схемы из ДСП.






























































































Чертежи и схемы из ДСП
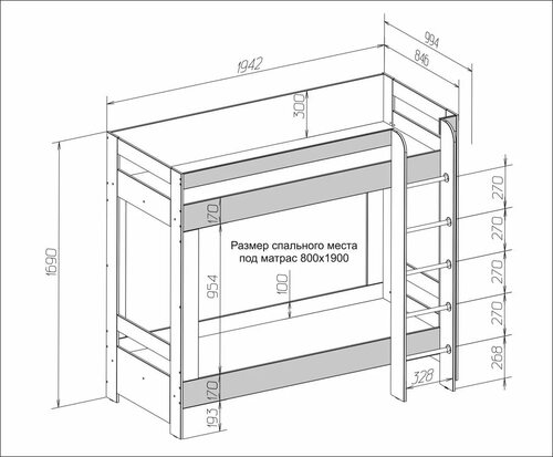
Перед тем как приступить к работе, необходимо разработать подробные чертежи и схемы для будущей кровати. Учтите размеры помещения, в котором будет располагаться кровать, а также предпочтения в стиле и дизайне.
Используя ДСП, вы сможете создать прочную и надежную конструкцию, которая прослужит вам долгие годы. Обратитесь к профессионалам или найдите подробные инструкции для создания двухъярусной кровати из ДСП.
Не забудьте о безопасности при работе с инструментами и материалами. Сделайте все измерения точно и следуйте инструкциям, чтобы избежать ошибок.
После завершения работы вы сможете наслаждаться результатом своего труда и уютной атмосферой, которую создаст ваша новая двухъярусная кровать.