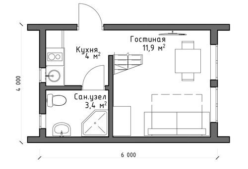
Кухня-гостиная 4х4 метра - это удобное пространство, которое требует грамотной планировки и дизайнерского подхода. В данной статье мы рассмотрим различные варианты планировки и дизайна кухни-гостиной, чтобы помочь вам найти идеальное решение для вашего интерьера.


















































Открытая планировка
Одним из популярных вариантов планировки кухни-гостиной 4х4 является открытая планировка, которая создает ощущение простора и свободы. Сочетание кухонной зоны и гостиной в одном пространстве позволяет легко организовать общение с семьей и гостями во время приготовления пищи.
Фото 1: [описание фото]
Фото 2: [описание фото]



















































Раздельные зоны
Для тех, кто предпочитает более четкое разграничение функциональных зон, раздельная планировка кухни-гостиной также может быть отличным выбором. Это позволяет создать отдельные пространства для приготовления пищи и отдыха, обеспечивая удобство и функциональность.
Фото 3: [описание фото]
Фото 4: [описание фото]
И так далее...