10 января 2024 /
0 комментариев
/
15 просмотров
Шкаф-кровать 582 - удивительно удобное и практичное решение для небольших помещений. В данной статье вы найдете подробную инструкцию по сборке и использованию данной мебели. Мы сопроводим каждый шаг качественными фотографиями, чтобы облегчить процесс сборки и установки.

1
Подъемный механизм 582 схема монтажа

2
Подъемный механизм 582 схема монтажа

3
Подъемный механизм 582 схема монтажа

4

5

6

7
Подъемный механизм 582 схема монтажа

8
Фурнитура для откидных кроватей Bettlift

9

10

11

12

13

14
.jpg)
15

16
.jpg)
17
Подъемный механизм 582 схема монтажа

18
Механизм 582 аналог

19

20

21
Схема сборки 582 механизма

22

23
Петли для откидной кровати

24

25

26

27

28
Подъёмный механизм ворот е900

29

30

31

32

33

34
Механизм откидной горизонтальной кровати WALLBED 209 присадка

35

36

37

38

39
Подъемный механизм для откидной кровати n03

40

41
Подъемный механизм 582

42

43

44
Фурнитура для откидных кроватей Bettlift

45

46

47

48

49

50

51
Фурнитура для откидных кроватей Bettlift

52

53

54

55

56

57
Механизм подъема кровати МПК 500, газлифты 1200n

58

59
Механизм откидной кровати Окулово № 582 (пара + 2 ГАЗ-лифта 2000n) !!!!

60

61

62
№582 механизм откидной кровати Окулово

63

64

65

66

67
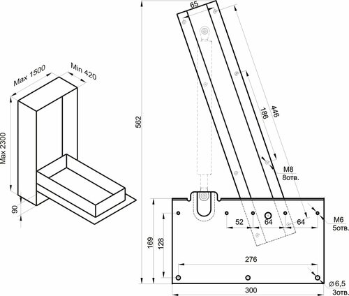
Схема сборки кровати трансформера откидной горизонтальная

68
Стопор 582

69

70
Смартбед 180f

71
ГАЗ лифт для шкафа кровати TST Lift 405-2000н

72
Механизм подъёма вертикальной кровати MLA-108

73

74
Смартбед 160

75

76
Mufus мебель трансформер

77
Подъемный механизм Стабилус
78

79

80
Чертеж механизма откидной кровати

81

82
Конструкция откидной кровати

83

84

85

86

87

88

89
Механизм подъема двери Jet 100n mr203b.100nl99

90

91

92

93

94

95

96
Смартбед 140

97
Пружинный механизм Gilardi Fratelli mla108.

98

99
MEBELEVAGROUP диван трансформер

100

101

102

103
Экоснайпер LS-927m

104

105
Микроволновка Панасоник nn-sd366w

106

107
Механизм подъёма кровати МТ 051
Подготовка к сборке
Перед тем как приступить к сборке шкафа-кровати, убедитесь, что у вас есть все необходимые инструменты и детали. Проверьте комплектацию по поставке и убедитесь, что ничего не упущено. Подготовьте рабочее место, чтобы иметь достаточно места для сборки.
... (продолжение статьи)