Расположение комнат в одноэтажном доме играет важную роль в создании удобной и функциональной планировки. Правильно спланированные помещения обеспечивают комфорт и удобство для проживающих. В этой статье мы рассмотрим основные принципы и рекомендации по расположению комнат в одноэтажном доме, а также предоставим множество фотографий для наглядного примера.
























































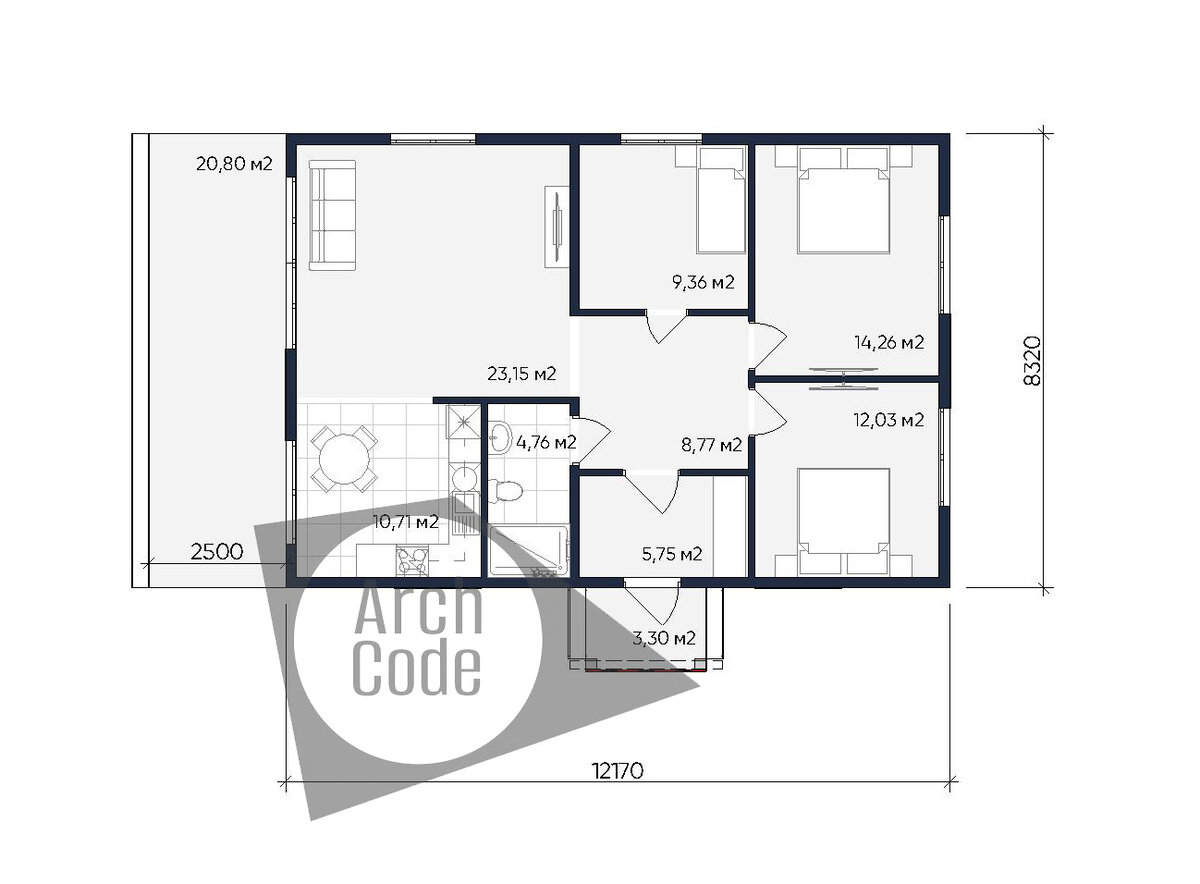
Гостиная
Гостиная является центром домашнего отдыха и общения, поэтому ее расположение важно учитывать при планировке одноэтажного дома. Оптимально разместить гостиную вблизи входа, чтобы обеспечить удобный доступ для гостей. Фотографии различных вариантов расположения гостиной помогут вам выбрать подходящий вариант для вашего дома.






















































Спальни
Расположение спален в одноэтажном доме также имеет свои особенности. Важно учитывать приватность и удобство доступа к спальным помещениям. Фотографии различных вариантов планировки спален помогут вам выбрать оптимальное расположение для вашего дома.
...
Мы надеемся, что эта статья поможет вам лучше понять особенности расположения комнат в одноэтажном доме. Не забудьте воспользоваться нашими фотографиями для вдохновения и выбора оптимальной планировки для вашего будущего дома.