Отделение для гладильной доски в шкафу - это удобное и практичное решение для хранения гладильной доски в доме. Но прежде чем приступить к установке, важно учесть правильные размеры, чтобы отделение подходило под вашу гладильную доску и шкаф.















































Стандартные размеры отделения для гладильной доски в шкафу
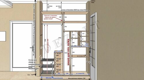
Стандартные размеры отделения для гладильной доски в шкафу обычно составляют 15-20 дюймов в ширину, 3-4 дюйма в глубину и 48-54 дюйма в высоту. Однако, перед установкой отделения, рекомендуется измерить размеры вашей гладильной доски, чтобы удостовериться, что отделение подходит идеально.
Помимо основных размеров, также стоит учесть место для хранения утюга, гладильных принадлежностей и возможность удобного доступа к гладильной доске.




































_2021-09-08_12-18-54.jpg)









Фотогалерея отделений для гладильной доски в шкафу
Ниже представлена фотогалерея различных отделений для гладильной доски в шкафу с разными размерами и дизайном. Вы можете выбрать подходящий вариант идеального отделения для вашей гладильной доски.
Фото 1: (описание фото 1)
Фото 2: (описание фото 2)
Фото 3: (описание фото 3)
Фото 4: (описание фото 4)
Фото 5: (описание фото 5)
Фото 6: (описание фото 6)
Фото 7: (описание фото 7)
Фото 8: (описание фото 8)
Фото 9: (описание фото 9)
Фото 10: (описание фото 10)
Спасибо за просмотр нашей фотогалереи! Надеемся, что вы нашли идеальное отделение для гладильной доски в шкафу с подходящими размерами.