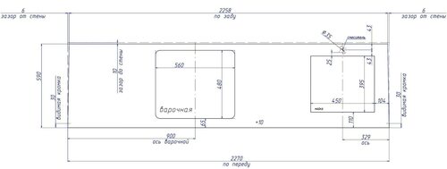
При установке мойки в столешницу важно правильно определить расстояние от края столешницы до места врезки для мойки. Неправильное расположение мойки может привести к проблемам в будущем. В этой статье мы рассмотрим основные шаги и рекомендации по определению этого расстояния.























Шаг 1: Измерение и маркировка
Первым шагом является измерение и маркировка места для врезки мойки. Используйте измерительную ленту для определения необходимого расстояния от края столешницы до места врезки. Пометьте это место мелом или маркером, чтобы иметь точные указания при установке мойки.























Шаг 2: Проверка совместимости
Прежде чем приступить к врезке мойки, убедитесь, что выбранная мойка совместима с вашей столешницей. Проверьте размеры и форму мойки, а также ее крепежные элементы, чтобы убедиться, что она подходит для установки в выбранное место.























Шаг 3: Врезка мойки
После того как вы определили необходимое расстояние и убедились в совместимости выбранной мойки, приступайте к врезке. Используйте специальные инструменты и следуйте инструкциям производителя для точной и аккуратной врезки мойки в столешницу.
Следуя этим рекомендациям, вы сможете правильно определить расстояние для врезки мойки в столешницу, что обеспечит долговечность и функциональность вашей кухонной мойки.