8 января 2024 /
0 комментариев
/
25 просмотров
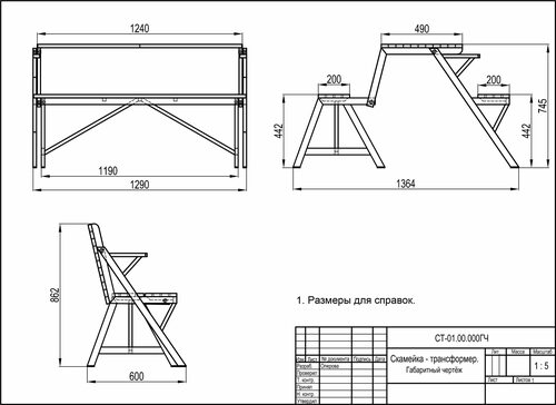
Создание скамейки-трансформера своими руками может стать увлекательным и практичным проектом для любителей металлообработки и сварки. В данной статье мы предоставим подробные чертежи, размеры и инструкции по изготовлению данной скамейки, а также множество фотографий, демонстрирующих каждый этап процесса.

1

2

3

4

5

6

7

8

9

10

11

12

13
14
Чертеж 3д стол

15

16

17

18

19

20

21

22

23

24

25

26

27

28

29

30

31

32

33

34

35
Лавка стол раскладная чертеж

36

37

38

39

40
Механизм трансформации стола МТ-2

41

42
Раскладные скамейки в стол

43

44

45
Скамья СКС 1800р чертеж

46
47

48
Садовые качели Texas Luxe чертеж

49
Силовая скамья универсальная чертеж

50

51

52
Механизм трансформации стола №587

53
Лавочка из профильной трубы на кладбище чертеж

54

55
Ширина лавочки стандарт

56

57
58

59

60
Лавочка для медитации чертеж

61

62

63

64

65

66
Https://novamett.ru/lavki/stol-skamejka

67

68
Скамья Wood Bench Plans

69
Лавочка Садовая со спинкой чертеж

70
Схема кухонного модуль сбоку

71
Чертеж станка для холодной ковки улитка

72

73

74
Чертеж лавочки из профильной трубы с размерами

75
Реактивная печь из профильной трубы 100х100 чертеж

76

77
Чертёж скамейки со спинкой из профильной трубы

78

79
Трубогиб чертеж 20 швеллер

80
Каркас скамьи из профтрубы чертеж

81

82

83

84

85
Схема сборки парника из поликарбоната

86

87

88
Чертеж лавочки из профильной трубы со спинкой 40/20

89

90
Парковая скамья габариты чертёж

91

92

93

94
Чертёж скамейки со спинкой из профильной трубы

95
Скамья со спинкой kpl 201 компан оборудование

96

97

98
Чертеж скамейки из профильной трубы 80*40

99
Лавочка кованная МАФ 1606

100

101

102

103

104

105

106

107

108
Эскиз уличной скамейки

109
Лавка Парковая чертеж
110

111
Чертежи и размеры скамейки-трансформера
Перед тем как приступить к изготовлению скамейки, необходимо ознакомиться с детальными чертежами и размерами. Наши подробные инструкции помогут вам понять, какие материалы и инструменты вам понадобятся для создания данного проекта.