7 января 2024 /
0 комментариев
/
15 просмотров
Навеска дверей шкафа купе является важным элементом, определяющим функциональность и внешний вид шкафа. В данной статье мы представляем разнообразные варианты навески дверей шкафа купе, чтобы помочь вам выбрать наиболее подходящий вариант для вашего интерьера.

1
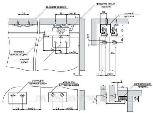
Фурнитура для раздвижных системы Aristo

2

3

4

5
Комплект фурнитуры Horus HR 12 1200

6
Комплект фурнитуры ares ar18 1800мм (Valcomp)

7
Хеттих Slide line 56

8
Комплект фурнитуры к раздвижным дверям Valcomp Saturn st18 900мм 2201021

9
Ручка профиль Hettich Topline

10
Система Hettich Topline l

11
Раздвижная система ст-148 подвесная

12
Комплект фурнитуры Сигма 1200мм

13
Раздвижная система Terno 6

14

15
Система Raumplus flua Premium

16

17

18

19

20
СКМ 80 схема монтажа

21

22

23

24

25

26

27

28

29

30
Комплект фурнитуры к раздвижным дверям Valcomp Saturn st18 900мм 2201021

31

32

33

34

35

36

37

38

39
Комплект фурнитуры Сигма 1200мм

40

41
СКМ 80 схема монтажа

42
Raumplus s800

43

44
Стопор с амортизатором ст.147.02

45

46

47

48

49

50

51

52

53

54

55
Система Raumplus flua Premium

56

57
Подвесная система Hettich Top line l

58

59
60

61
Комплект направляющих для раздвижной системы oneprs3

62
Опорная система fr-02 для раздвижных перегородок (2400мм) на 3 створки

63

64
Новатор 890 раздвижная система

65

66
СКМ 80 раздвижная система

67
Комплект роликов универсаль-СН

68

69

70

71
Выдвижные двери механизм снизу

72
Topline XL Hettich
73

74
Подвесная профильная система Modus Air

75

76
Комплект фурнитуры Сигма 1200мм

77

78
Шкаф Hettich Topline XL

79

80
Вешаем двери на шкаф

81
Крепление сдвижной межкомнатной двери

82
Раздвижная система Модус т409

83
Terno scorrevoli фурнитура

84

85

86
Раздвижная система PCA v2000

87
Механизм раздвижной двери MSM Loks

88
Raumplus s1500

89
Доводчик Artens «универсал/синхро»

90
Хеттих фурнитура Topline 27

91

92

93

94

95
Подвесная система Modus Air

96
Доводчик Silent-stop

97
SISCOSISTEM механизм для двери книжки 0133pb 2g

98

99
Хеттих раздвижная система Topline l

100

101
Комплект фурнитуры ares2

102
Хефеле фурнитура раздвижные системы

103
Раздвижная система Nova Aristo схема сборки

104

105

106

107
Комплект фурнитуры Topline Hettich схема

108
Раздвижная система PCA v2000

109
Стопор Нижний для системы Версаль

110

111

112
Варианты навески дверей шкафа купе
Здесь вы найдете фотографии различных вариантов навески дверей шкафа купе, включая различные стили, материалы и цветовые решения. Мы уверены, что среди представленных вариантов вы сможете найти идеальный вариант для вашего шкафа купе.