Программа Архикад позволяет создавать детальные планы помещений с расстановкой мебели. Это удобный инструмент для архитекторов, дизайнеров интерьеров и всех, кто занимается планировкой пространства.
-image.jpg)





































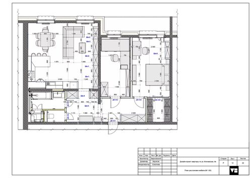
Примеры планов с расстановкой мебели
Ниже представлены несколько примеров планов помещений с расстановкой мебели, созданных в программе Архикад. Эти примеры могут послужить вдохновением для ваших собственных проектов.
1. [Фото плана с расстановкой мебели]
2. [Фото плана с расстановкой мебели]
3. [Фото плана с расстановкой мебели]






































Практические советы по расстановке мебели в Архикаде
При создании плана с расстановкой мебели в Архикаде важно учитывать не только внешний вид, но и функциональность помещения. Вот несколько практических советов:
1. Размещайте мебель так, чтобы обеспечить удобство передвижения в помещении.
2. Учитывайте освещение и вентиляцию при расстановке мебели.
3. Экспериментируйте с разными вариантами расположения мебели, пока не найдете оптимальный вариант.
Мы надеемся, что эти советы и примеры помогут вам создать удобные и функциональные планы с расстановкой мебели в программе Архикад.