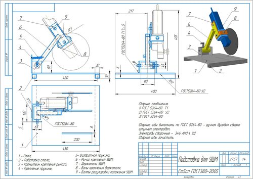
Изготовление стола для болгарки своими руками может быть увлекательным и полезным проектом для любого мастера. В этой статье мы предоставим подробные чертежи и пошаговые инструкции по созданию стола для болгарки.

























































Выбор материалов и подготовка
Первым шагом в изготовлении стола для болгарки является выбор подходящих материалов. Необходимо убедиться, что выбранные материалы прочны и устойчивы к воздействию инструмента. После выбора материалов следует приступить к изготовлению чертежей и подготовке необходимых инструментов.
...

























































Сборка и отделка
После того как все части стола для болгарки изготовлены, приступаем к сборке. Следуя подробным чертежам, собираем конструкцию стола. После сборки следует провести отделку, чтобы стол выглядел привлекательно и был защищен от внешних воздействий.
...