6 января 2024 /
0 комментариев
/
22 просмотра
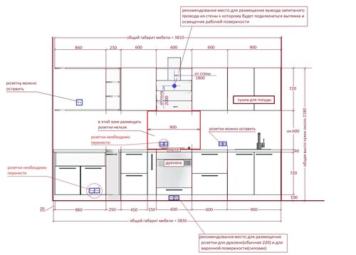
При установке варочной панели и духового шкафа важно правильно определить высоту розетки. Это обеспечит безопасность и удобство использования кухонной техники.

1

2

3

4
Расположение розеток на кухне икеа

5

6

7

8

9
Схема установки встраиваемой вытяжки на кухне

10
Схема разводки электропроводки на кухне

11
Схема подключения кухонной вытяжки к электросети

12
Розетка под варочную панель расположение

13

14
Расположение розеток в кухонном гарнитуре

15
Правильное расположение розеток на кухне схема

16
Икеа размещение розеток на кухне

17

18
Стандарты размещения розеток на кухне

19
Расположение розеток на кухне икеа метод

20
Схема розеток на кухне икеа

21
Стандарт розеток снизу

22
Схема кухонной электропроводки для подключения бытовой техники

23

24
Схема сантехнический монтаж кухня

25
План розеток для кухни икеа

26
Схема электропроводки освещения в кухне

27

28

29
План розеток для кухни икеа

30

31
Схема электропроводки освещения в кухне

32
Схема розеток на кухне икеа

33
Розетка для посудомоечной машины расположение

34
Розетка для посудомойки расположение

35
Разводка электрики на кухне схема

36
Схема проводки электрики на кухню

37

38
Схема установки розеток на кухне

39
Розетка под встроенный духовой шкаф Electrolux

40
На какой высоте устанавливается розетка для электроплиты

41
Схема проводки электричества на кухне

42
Размещение розеток для встраиваемой техники на кухне

43
44

45

46
Вывод кабеля для подсветки столешницы кухни

47
Розетка для встраиваемой духовки

48

49
Расположение Разет ок на кухне

50
Блок розеток 220в 20а

51
Розетка 380 и 220 под духовой шкаф и варочную панель

52
Розетка под духовой шкаф бош

53

54
Розетка под духовой шкаф бош

55
Схема установки водорозеток на кухне

56
Схема подключения кухонной электропроводки к

57
Монтаж электропроводки на кухне

58
Шнайдер электрик розетка под варочную панель и духовой шкаф

59
Схема монтажа электрики на кухне

60

61

62

63

64
Разводка электропроводки на кухне
65
Схема монтажа розеток на кухне

66
Проводка на кухне

67
Розетка под варочную панель встраиваемая

68

69
Встраиваемая посудомоечная машина 45 схема монтажа

70
Индукционная варочная поверхность Bosch схема встройки
71

72

73
Схема размещения розеток на кухне
74

75
Встраиваемая посудомоечная машина Midea mid45s430

76

77
Схема установки водорозеток на кухне

78
Подключить варочную панель Ханса

79

80

81

82
Схема монтажа розеток на кухне

83

84
Схема розеток на кухне икеа

85
Схема установки розеток на кухне

86
Схема расположения розеток и выключателей в детской комнате
87
Схема электрики кухни Мария

88
Схема разводки электропроводки на кухне

89
Схема электропроводки освещения в кухне

90
Размещение розеток на кухне

91
Схема установки водорозеток на кухне

92
Схема подключения кухонной проводки

93
Схема установки розеток на кухне под бытовую технику
94
Розетка для вытяжки на кухне расположение
95

96

97
Стандарты расположения розеток и выключателей

98
Штробление вентиляционного короба

99
Схема монтажа электропроводки на кухне

100

101
Прокладка электропроводки в кухне

102
Схема подключения кухонного оборудования

103
Нормы размещения розеток и выключателей в квартирах

104

105

106
Розетка под варочную панель и духовой шкаф Рексант

107

108

109

110
Шаг 1: Правильное измерение
Прежде всего, необходимо определить высоту установки варочной панели и духового шкафа. Для этого измерьте расстояние от пола до нижнего края каждого устройства.